H64Y、H44Y鍛鋼旋啟式止回閥密封面采用鐵基合金或司太立(Stellite)鈷基硬質合金堆焊面成耐磨、耐高溫、耐腐蝕、抗擦傷性能好使用壽命長等特點。不銹鋼銷軸與閥瓣連接采用內裝式結構-性能優良-密封更可靠。產品廣泛應用于石油、化工、制藥、電力行業等各種工況的管路上防介質倒流作用。適用介質為水、油品、蒸汽、氣體及某些腐蝕性液體介質等。
產品名稱: | 鍛鋼旋啟式止回閥 | 產品型號: | H64Y、H44Y |
公稱通徑: | DN15~DN50 | 結構形式: | 升降式、旋啟式 |
公稱壓力: | 1.6MPa~42.0MPa 150LB-2500LB | 連接方式: | 承插焊、內螺紋、法蘭 |
適用溫度: | -29ºC~+550ºC | 驅動方式: | 介質推動 |
閥體材質: | 鍛鋼A105、A182、F22、304、316、316L | 制造標準: | 國標GB、德國DIN、美國API、ANSI |
適用介質: | 水、油、氣體、液體 | 生產廠家: | 浙江嵐勝閥門有限公司 |
1、螺栓式閥蓋,按這種設計形式設計的閥門,其閥體與閥蓋用螺栓螺母連接,纏繞式墊片(316夾柔性石墨制造)密封.客戶有特殊要求時也可采用金屬環連接。
2、焊接式閥蓋,按這種設計形式的閥門,其閥體與閥蓋用螺紋連接,全焊密封.客戶有特殊要求時也可采用透焊連接。
3、壓力自緊式閥蓋,按這種設計形式設計的閥門,其閥體與閥蓋用螺紋連接,內壓自密環密封。
符合API602,MSS-SP-118(可采用標準)和ANSI B16.34、B35352。檢驗與測試按API598,標志按MSS-SP-25
采用以下結構
全徑或縮徑
結構長度按ANSI B16.5 F16.5
法蘭自緊式閥蓋
明桿支架型
自定心壓板壓套式
整體上密封座
整體閥體法蘭
對焊接端符合ASME B16.25
RTJ閥體閥蓋連接形式
螺栓連接、纏繞墊片密封式閥蓋,螺式連接,全焊密封式閥蓋以及螺紋連接內壓自緊密封閥蓋。
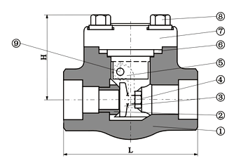
序號 | 零件名稱 | CStoASTM | AStoASTM | SStoASTM | |
A105 | F22 | F304(L) | F316(L) | ||
1 | 閥體 | A105 | A182F22 | A182F304(L) | A182F316(L) |
2 | 閥座 | A276410 | A276304 | A276F304(L) | A276F316(L) |
3 | 閥瓣 | A276420 | A276304 | A276F304(L) | A27F316(L) |
4 | 螺母 | A1942H | A1944 | A1948 | A1948M |
5 | 搖桿 | A105 | A182F22 | A182F304(L) | A182F316(L) |
6 | 墊片 | 316夾柔性石墨 | 316夾PTFE | ||
7 | 閥蓋 | A105 | A182F22 | A182F304(L) | A182 F316(L) |
8 | 螺栓 | A193B7 | A193B16 | A193B8(M) | A193B8(M) |
9 | 銷釘 | a276420 | A182F304 | A182F316 | |
適用介質 | 水、蒸汽、油品等 | 水、蒸汽、油品等 | 硝酸、醋酸等 | ||
適用溫度 | —29℃~425℃ | —29℃~550℃ | —29℃~200℃ | ||
注意:客戶需求的其他材質也可采用。密封面材料配對由客戶指定內件代號決定。
CS=碳鋼;AS=合金鋼;SS=不銹鋼;

NPS | 3/8” | 1/2” | 3/4” | 1” | 11/4" | 11/2" | 2" | |
L | 800LB | 79 | 79 | 92 | 111 | 120 | 120 | 140 |
900LB~1500LB | 92 | 111 | 111 | 120 | 120 | 140 | 178 | |
W | 800LB | 61 | 61 | 78 | 84 | 101 | 120 | 133 |
900LB~1500LB | 79 | 79 | 79 | 97 | 105 | 120 | 140 | |
重量 | 800LB | 1.1 | 1.0 | 1.9 | 3.9 | 4.5 | 7.3 | 10.0 |
900LB~1500LB | 3.1 | 3.0 | 3.6 | 4.3 | 6.1 | 8.8 | 12.6 | |

NPS | 1/2” | 3/4” | 1” | 11/4" | 11/2" | 2" | |
L | 900LB~1500LB | 140 | 140 | 140 | 178 | 178 | 216 |
2500lb | 186 | 186 | 186 | 232 | 232 | 279 | |
H | 117 | 117 | 117 | 152 | 152 | 195 | |
重量 | 900LB~1500LB | 8.2 | 7.8 | 7.7 | 19.8 | 19.2 | 21.3 |
2500lb | 10.0 | 9.6 | 9.4 | 21.5 | 27.5 | 32.5 | |