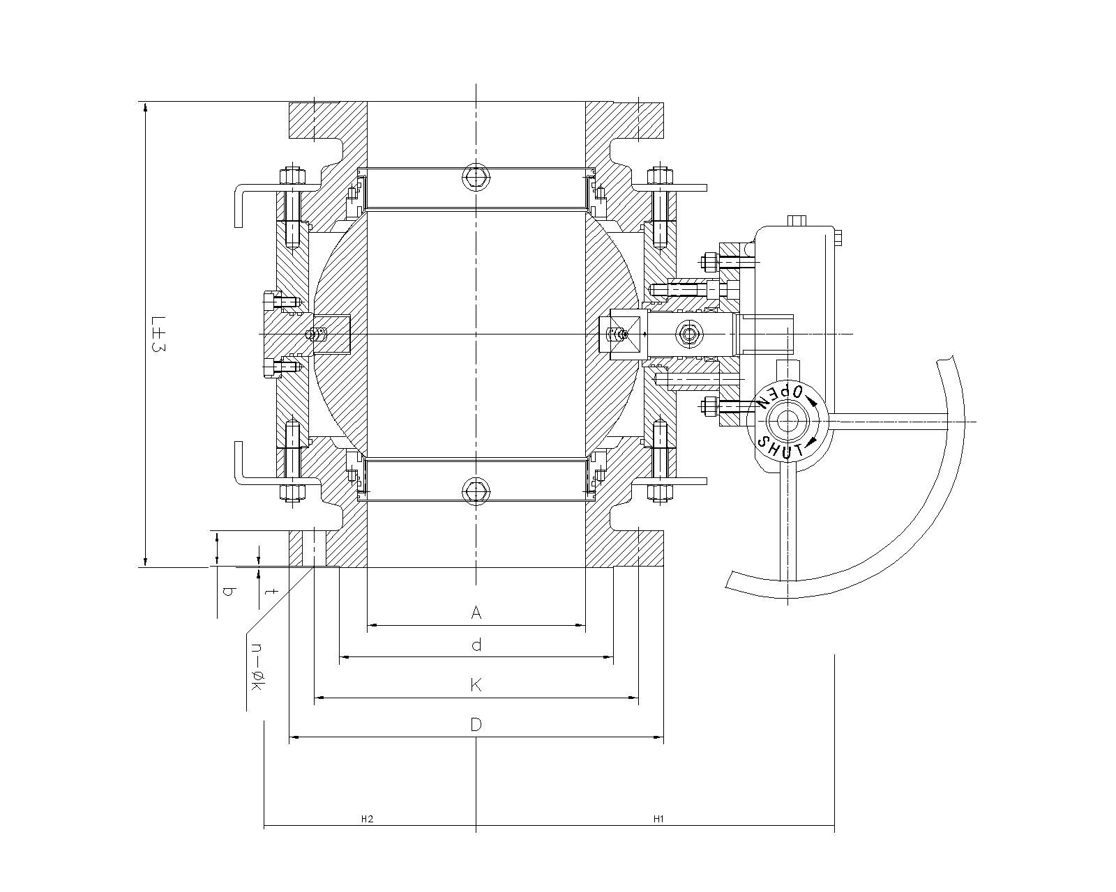
Q47F固定球閥是一種高性能閥門,適用于長輸管線和一般工業管線,其強度、安全性、耐惡劣環境性等在設計時進行了特殊考慮,適合于高溫高壓的水、蒸汽、石油、煤炭、纖維、稠性和腐蝕性介質。其中抗硫系列產品適用于含硫化氫介質、雜質多、腐蝕嚴重的天然氣長輸管線。固定球閥與浮動球閥相比,工作時,閥前流體壓力在球體上產生的作用力全部傳遞給軸承,不會使球體向閥座移動,因而閥座不會承受過大的壓力,所以固定式法蘭球閥的轉矩小、閥座變形小,密封性能穩定、使用壽命長,適用于高壓、大口徑場合。先進的彈簧預閥座組件,具有自緊特性,實現上游密封。每閥有兩個閥座,每個方向都能密封,因而安裝沒有流向限制,是雙向。
產品名稱: | 鍛鋼固定球閥 | 產品型號: | Q47F |
公稱通徑: | DN50~DN1200 | 結構形式: | 球形 |
公稱壓力: | 1.6Mpa~32.0Mpa | 連接方式: | 法蘭 |
適用溫度: | -20~180℃ | 驅動方式: | 手動、電動、氣動 |
閥體材質: | A105鍛鋼、WCB鑄鋼、不銹鋼 | 制造標準: | 國標GB、德國DIN、美國API、ANSI |
適用介質: | 水、油、燃氣、氣體及某些腐蝕性液體 | 生產廠家: | 浙江嵐勝閥門有限公司 |
1、結構特點:固定球閥球體帶有固定軸的球閥,稱為固定球閥。固定球閥主要用于高壓大口徑。根據閥座密封圈的安裝不同,固定球閥可以有兩種結構:球體前密封的閥座,球體后密封的閥座.
2、整體結構:具有全通道、緊急密封、防火等特點。
3、全通徑:閥門流道孔直徑與管和徑內徑一致,更于管線清掃。
4、阻塞與排泄:閥門處于關閉狀態時,上下游側的閥座使流體阻斷,閥體中腔的積治物可以排泄,排泄裝置如下機能:
① 事前可檢查閥座是否泄漏損傷;
②減少介質更換對閥門的污染;
③ 在工作壓力下,閥門處于全開或全關狀態時,可更換閥桿部填料函。(如圖5所示排泄裝置是排污塞)
5、自動泄壓
閥門中腔停滯的介質由于溫度升高,而出現異常升高時,閥座或閥體上安裝的安全閥可以自動泄壓。
6、防火結構
采用雙重密封,當發生火災時,非金屬閥座燒損后,介質將球體壓緊在閥體上的金屬密封面阻止介質大量漏出,符合API607規定。
7、緊急密封
閥座及閥桿密封件出現損傷而引起泄漏時,通過注脂閥注入密封脂可以起瞬時應急密封作用。
8、閥桿加長
閥桿加長適用于地下安裝及低溫介質用,加長尺寸,根據需要確定。操作方式有手動、氣動、電動、氣液聯動、液動等。
試驗壓力(MPa) | 公稱壓力(MPa) | 壓力級(Class) | |||||||||||
1.6 | 2.5 | 4.0 | 6.4 | 10.0 | 16.0 | 25.0 | 150 | 300 | 400 | 600 | 900 | 1500 | |
強度試驗 | 2.4 | 3.8 | 6.0 | 9.6 | 15.0 | 24 | 37.5 | 3.1 | 7.8 | 10.2 | 15.3 | 23.1 | 38.4 |
密封試驗 | 1.8 | 2.8 | 4.4 | 7.0 | 11.0 | 17.6 | 27.5 | 2.2 | 5.6 | 7.5 | 11.2 | 16.8 | 28.1 |
氣密試驗 | 0.5-0.7 | ||||||||||||
工作溫度 | PTEE≤150℃ PPL E≤300℃ 碳纖≤350℃ | ||||||||||||
適用介質 | C:水、油、氣體、蒸氣 P:硝酸類(溫度≤200℃ ) R:醋酸類(溫度≤200℃ ) | ||||||||||||
序號 | 零件名稱 | 材質 | |
GB | ASTM | ||
1 | 閥體 | WCB、A105 | A182 F316 |
2 | 彈簧 | 60Si2Mn | 316 |
3 | 密封圈 | 增強聚四氟乙烯 | 增強聚四氟乙烯 |
4 | 墊片 | 柔性石墨+不銹鋼 | 柔性石墨+316 |
5 | 排污螺塞 | 25 | 316 |
6 | O型密封圈 | 橡膠 | 橡膠 |
7 | 底蓋 | A105 | 316 |
8 | 螺釘 | 35 | 316 |
9 | 閥桿 | 2Cr13+鍍鎳磷 | 316 |
10 | 滑動軸承 | 不銹鋼+PTFE | 316+TPFE |
11 | 球體 | A105+鍍鎳磷 | A182 F316 |
12 | 閥座 | A105+鍍鎳磷 | 316 |
13 | 螺柱 | 35CrMoA | 316 |
14 | 螺母 | 35 | 316 |
15 | 壓套 | A105 | 316 |
16 | 填料 | PTFE | PTFE |
17 | 填料壓蓋 | WCB | A216-WCB |
18 | 鍵 | 45 | 316 |

公稱通徑 | 2" | 21/2" | 3" | 4" | 5" | 6" | 8" | 10" | 12" | 14" | 16" | 18" | 20" | 24" | 28" | 32" | |
D1 | 51 | 64 | 76 | 102 | 127 | 152 | 203 | 254 | 305 | 337 | 387 | 438 | 489 | 591 | 686 | 781 | |
L | RF | 178 | 191 | 283 | 229 | 356 | 394 | 457 | 533 | 610 | 686 | 762 | 864 | 914 | 1067 | 1245 | 1372 |
BW | 216 | 241 | 283 | 305 | 381 | 457 | 521 | 559 | 635 | 762 | 838 | 914 | 991 | 1143 | 1346 | 1542 | |
H1 | 102 | 114 | 127 | 152 | 184 | 219 | 273 | 360 | 395 | 430 | 470 | 550 | 580 | 700 | 800 | 950 | |
H2 | 107 | 125 | 152 | 178 | 300 | 330 | 398 | 495 | 580 | 625 | 670 | 698 | 840 | 1050 | 1100 | 1150 | |
E | 116 | 116 | 171 | 171 | 257 | 257 | 257 | 150 | 83 | 83 | |||||||
F | 350 | 350 | 420 | 420 | 400 | 400 | 400 | 410 | 650 | 650 | |||||||
W | 230 | 400 | 400 | 650 | 1050 | 1050 | 600 | 600 | 800 | 800 | 800 | 500 | 800 | 800 | 800 | 800 | |
W(kg) | 12 | 16 | 22 | 35 | 58 | 74 | 205 | 322 | 460 | 576 | 864 | 1280 | 1600 | 3540 | 4500 | 5940 | |
公稱通徑 | 2" | 21/2" | 3" | 4" | 5" | 6" | 8" | 10" | 12" | 14" | 16" | 18" | 20" | 24" | 28" | 32" | |
D1 | 51 | 64 | 76 | 102 | 127 | 152 | 203 | 254 | 305 | 337 | 387 | 438 | 489 | 591 | 686 | 781 | |
L | RF | 216 | 241 | 283 | 305 | 381 | 457 | 521 | 559 | 635 | 762 | 838 | 914 | 991 | 1143 | 1346 | 1542 |
BW | 216 | 241 | 283 | 305 | 381 | 457 | 521 | 559 | 635 | 762 | 838 | 914 | 991 | 1143 | 1346 | 1542 | |
H1 | 102 | 114 | 127 | 152 | 184 | 219 | 273 | 360 | 395 | 430 | 470 | 580 | 580 | 700 | 800 | 950 | |
H2 | 107 | 125 | 152 | 178 | 300 | 330 | 398 | 495 | 580 | 625 | 670 | 840 | 840 | 1050 | 1100 | 1150 | |
E | 116 | 116 | 171 | 171 | 257 | 257 | 257 | 150 | 83 | 83 | |||||||
F | 350 | 350 | 420 | 420 | 400 | 400 | 400 | 410 | 650 | 650 | |||||||
W | 230 | 400 | 400 | 650 | 1050 | 1050 | 600 | 600 | 800 | 800 | 800 | 800 | 800 | 800 | 800 | 800 | |
W(kg) | 15 | 24 | 30 | 55 | 87 | 118 | 255 | 370 | 533 | 640 | 1030 | 1542 | 2100 | 4200 | 5300 | 7860 | |
公稱通徑 | 2" | 21/2" | 3" | 4" | 6" | 8" | 10" | 12" | 14" | 16" | 20" | 24" | 28" | |
D1 | 51 | 64 | 76 | 102 | 152 | 203 | 254 | 305 | 337 | 387 | 489 | 591 | 686 | |
L | RF | 292 | 330 | 356 | 406 | 495 | 597 | 673 | 762 | 826 | 902 | 1054 | 1232 | 1397 |
BW | 295 | 333 | 359 | 410 | 498 | 600 | 676 | 765 | 829 | 905 | 1060 | 1241 | 1410 | |
H1 | 114 | 124 | 133 | 159 | 250 | 294 | 395 | 445 | 500 | 530 | 660 | 800 | 900 | |
H2 | 108 | 155 | 197 | 235 | 300 | 374 | 445 | 512 | 550 | 615 | 810 | 1010 | 1180 | |
E | 116 | 116 | 116 | 116 | 116 | 171 | 171 | 257 | 257 | 257 | 150 | 83 | 123 | |
F | 350 | 350 | 350 | 350 | 350 | 420 | 420 | 400 | 400 | 400 | 410 | 650 | 735 | |
W | 600 | 600 | 600 | 600 | 600 | 800 | 800 | 800 | 800 | 800 | 800 | 800 | 800 | |
W(kg) | 23 | 35 | 49 | 91 | 192 | 355 | 640 | 880 | 1100 | 1540 | 2800 | 5300 | 5700 | |
公稱通徑 | 2" | 21/2" | 3" | 4" | 6" | 8" | 10" | 12" | 14" | 16" | 20" | 24" | 28" | |
D1 | 51 | 64 | 76 | 102 | 152 | 203 | 254 | 305 | 337 | 387 | 489 | 591 | 686 | |
L | RF | 292 | 330 | 356 | 432 | 559 | 597 | 787 | 838 | 889 | 991 | 1194 | 1397 | 1549 |
BW | 295 | 333 | 359 | 435 | 562 | 600 | 791 | 841 | 892 | 994 | 1200 | 1407 | 1562 | |
H1 | 114 | 124 | 133 | 159 | 250 | 294 | 395 | 445 | 500 | 530 | 660 | 800 | 900 | |
H2 | 108 | 155 | 197 | 235 | 300 | 374 | 445 | 512 | 550 | 615 | 810 | 1010 | 1180 | |
E | 116 | 116 | 116 | 116 | 116 | 171 | 171 | 257 | 257 | 257 | 150 | 83 | 123 | |
F | 350 | 350 | 350 | 350 | 350 | 420 | 420 | 400 | 400 | 400 | 410 | 650 | 735 | |
W | 600 | 600 | 600 | 600 | 600 | 800 | 800 | 800 | 800 | 800 | 800 | 800 | 800 | |
W(kg) | 35 | 38 | 55 | 102 | 232 | 390 | 710 | 960 | 1700 | 1970 | 3250 | 5800 | 6700 | |
公稱通徑 | 2" | 21/2" | 3" | 4" | 6" | 8" | 10" | 12" | 14" | 16" | 18" | 20" | 24" | |
D1 | 51 | 64 | 76 | 102 | 152 | 203 | 254 | 305 | 324 | 375 | 426 | 473 | 572 | |
L | RF | 368 | 419 | 381 | 457 | 610 | 737 | 838 | 965 | 1029 | 1130 | 1219 | 1321 | 1549 |
BW | 371 | 422 | 384 | 460 | 613 | 740 | 841 | 968 | 1038 | 1140 | 1232 | 1334 | 1568 | |
H1 | 217 | 241 | 259 | 297 | 360 | 322 | 420 | 470 | 510 | 600 | 700 | 720 | 810 | |
H2 | 126 | 158 | 191 | 216 | 270 | 394 | 502 | 572 | 675 | 762 | 866 | 894 | 956 | |
E | 116 | 116 | 116 | 116 | 171 | 171 | 257 | 257 | 150 | 150 | 180 | 180 | 220 | |
F | 350 | 350 | 350 | 350 | 420 | 420 | 420 | 400 | 410 | 410 | 650 | 650 | 735 | |
W | 600 | 600 | 600 | 600 | 800 | 800 | 800 | 800 | 800 | 800 | 800 | 800 | 800 | |
W(kg) | 50 | 60 | 80 | 125 | 270 | |||||||||
公稱通徑 | 2" | 21/2" | 3" | 4" | 6" | 8" | 10" | 12" | 14" | 16" | 18" | 20" | 24" | |
D1 | 51 | 64 | 76 | 102 | 146 | 194 | 241 | 289 | 318 | 362 | 395 | 440 | 504 | |
L | RF | 368 | 419 | 381 | 546 | 705 | 832 | 991 | 1130 | 1257 | 1384 | 1537 | 1664 | 1689 |
BW | 371 | 422 | 384 | 549 | 711 | 941 | 1000 | 1146 | 1276 | 1407 | 1559 | 1686 | 1902 | |
H1 | 126 | 158 | 191 | 216 | 296 | 378 | 495 | 542 | 590 | 670 | 710 | 750 | 850 | |
H2 | 217 | 241 | 259 | 297 | 365 | 475 | 578 | 696 | 761 | 831 | 900 | 950 | 1080 | |
E | 116 | 116 | 116 | 116 | 171 | 257 | 257 | 150 | 150 | 180 | 220 | 220 | 280 | |
F | 350 | 350 | 350 | 350 | 420 | 400 | 400 | 410 | 410 | 650 | 735 | 735 | 735 | |
W | 600 | 600 | 600 | 600 | 800 | 800 | 800 | 800 | 800 | 800 | 800 | 800 | 800 | |
W(kg) | 50 | 75 | 117 | 216 | 380 | |||||||||