WJ41H、WJ41W波紋管截止閥是引進國外先進技術 、采用國外金屬波紋管密封技術制造、高性能的彈性金屬波紋管、伸縮疲勞壽命特別長;完全消除了普通閥門閥桿填料密封老化快易泄露的缺點,波紋管截止閥不但提高了使用能源效率、增加生產設備安全性、減少了維修費用及頻繁的維修保養,還提供了清潔安全的工作環境。波紋管密封截止閥適用于石油、化工、制藥、化肥、電力等行業的各種工況管路上,用于切斷或接通管路介質。
產品名稱: | 波紋管截止閥 | 產品型號: | WJ41H、WJ41W |
公稱通徑: | DN15~DN300 | 結構形式: | 截止式 |
公稱壓力: | 1.6MPa~4.0MPa | 連接方式: | 法蘭、焊接、內螺紋 |
適用溫度: | -40ºC~+425ºC | 驅動方式: | 手動 |
閥體材質: | 鑄鐵、鑄鋼、不銹鋼 | 標準: | 國標GB、德國DIN、美國API、ANSI |
適用介質: | 水、油、蒸汽、氨氣、氯氣、氣體、液體 | 生產廠家: | 浙江嵐勝閥門有限公司 |
1.雙重的密封設計(波紋管+填料)若波紋管失效,閥桿填料也會避免。
2.結構合理、密封可靠、性能優良、造型美觀。
3.沒有流體損失,降低能源損失,提高工廠設備安全。
4.密封面堆焊Co基硬質合金、耐磨、耐腐、抗摩擦性能好、使用壽命長,減少維修次數,降低經營成本。
5.堅固耐用的波紋管密封設計,保證閥桿的零泄漏,提供無需維護的條件。
6.截止閥閥桿調質及表面氮化處理,有良好的抗腐和抗摩擦性能;
7.閥桿升降位置指示更直觀。
執行標準 | |
制造標準:DIN3356 | 結構長度:DIN3202 |
法蘭標準:DIN2543-2545 | 對焊口標準:DIN3239 |
試驗標準:DIN3230 | |
波紋管截止閥特點 | |
雙層波紋管 | 維修方便 |
波紋管密封閥桿 | 雙重密封 |
位置指示 | 無升降手輪 |
用途 | |
工業 | 電站 |
廢氣凈化廠 | 天然氣 |
真空裝置 | 氨 |
熱水 | 冷凍系統 |
加熱設備 | 蒸汽系統 |
材料性能(表) | ||||||
零件名稱 | 閥體 | 閥蓋 | 閥桿 | 閥瓣 | 密封面 | 填料 |
GS-C25 | GS-C25 | GS-C25 | 13Cr | 2Cr13 | 2Cr13 | 柔性石墨 |
304 | CF8 | CF8 | 304 | 304 | 304 | 柔性石墨 |
316 | CF8M | CF8M | 316 | 316 | 316 | 柔性石墨 |
304L | Cf3 | CF3 | 316 | 304L | 304L | 柔性石墨 |
316L | CF3M | CF3M | 316 | 316L | 316L | 柔性石墨 |

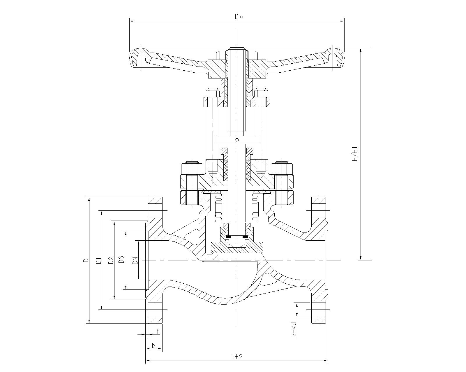
PN | DN | L | D | D1 | D2 | B | f | H | N-ф | H |
1.6 | 15 | 130 | 95 | 65 | 45 | 16 | 2 | 191 | 4-14 | 6 |
20 | 150 | 105 | 75 | 58 | 18 | 2 | 191 | 4-14 | 6 | |
25 | 160 | 115 | 85 | 68 | 18 | 2 | 197 | 4-14 | 8 | |
32 | 180 | 140 | 100 | 78 | 18 | 2 | 200 | 4-18 | 8 | |
40 | 200 | 150 | 110 | 88 | 18 | 3 | 218 | 4-18 | 13 | |
50 | 230 | 165 | 125 | 102 | 20 | 3 | 220 | 4-18 | 13 | |
65 | 290 | 185 | 145 | 122 | 20 | 3 | 238 | 4-18 | 16 | |
80 | 310 | 200 | 160 | 138 | 20 | 3 | 257 | 4-18 | 20 | |
100 | 350 | 220 | 180 | 158 | 20 | 3 | 340 | 4-18 | 25 | |
125 | 400 | 250 | 210 | 188 | 22 | 3 | 360 | 4-18 | 32 | |
150 | 480 | 285 | 240 | 212 | 22 | 3 | 390 | 8-22 | 40 | |
200 | 600 | 340 | 295 | 268 | 24 | 3 | 530 | 12-22 | 50 | |
2.5 | 15 | 130 | 95 | 65 | 45 | 16 | 2 | 191 | 4-14 | 6 |
20 | 150 | 105 | 75 | 58 | 18 | 2 | 191 | 4-14 | 6 | |
25 | 160 | 115 | 85 | 68 | 18 | 2 | 197 | 4-14 | 8 | |
32 | 180 | 140 | 100 | 78 | 18 | 2 | 200 | 4-18 | 8 | |
40 | 200 | 150 | 110 | 88 | 18 | 3 | 218 | 4-18 | 13 | |
50 | 230 | 165 | 125 | 102 | 20 | 3 | 220 | 4-18 | 13 | |
65 | 290 | 180 | 145 | 122 | 22 | 3 | 238 | 4-18 | 16 | |
80 | 310 | 200 | 160 | 138 | 24 | 3 | 257 | 4-18 | 20 | |
100 | 350 | 235 | 190 | 162 | 24 | 3 | 340 | 8-22 | 25 | |
125 | 400 | 270 | 220 | 188 | 26 | 3 | 360 | 8-26 | 32 | |
150 | 480 | 300 | 250 | 218 | 28 | 3 | 390 | 8-26 | 40 | |
200 | 600 | 360 | 310 | 278 | 30 | 3 | 530 | 12-26 | 50 | |
4.0 | 15 | 130 | 95 | 65 | 45 | 16 | 2 | 191 | 4-14 | 6 |
20 | 150 | 105 | 75 | 58 | 18 | 2 | 191 | 4-14 | 6 | |
25 | 160 | 115 | 85 | 68 | 18 | 2 | 197 | 4-14 | 8 | |
32 | 180 | 140 | 100 | 78 | 18 | 2 | 200 | 4-18 | 8 | |
40 | 200 | 150 | 110 | 88 | 18 | 3 | 218 | 4-18 | 13 | |
50 | 230 | 165 | 125 | 102 | 20 | 3 | 220 | 4-18 | 13 | |
65 | 290 | 185 | 145 | 122 | 22 | 3 | 238 | 4-18 | 16 | |
80 | 310 | 200 | 160 | 138 | 24 | 3 | 257 | 8-18 | 20 | |
100 | 350 | 235 | 190 | 162 | 24 | 3 | 340 | 8-22 | 25 | |
125 | 400 | 270 | 220 | 188 | 26 | 3 | 360 | 8-26 | 32 | |
150 | 480 | 300 | 250 | 218 | 28 | 3 | 390 | 8-26 | 40 |